Subdivision is a proposal for a cultural center is built upon the case studies
undertaken of the red building of the Golden Road Brewery on San Fernando Road and Eric
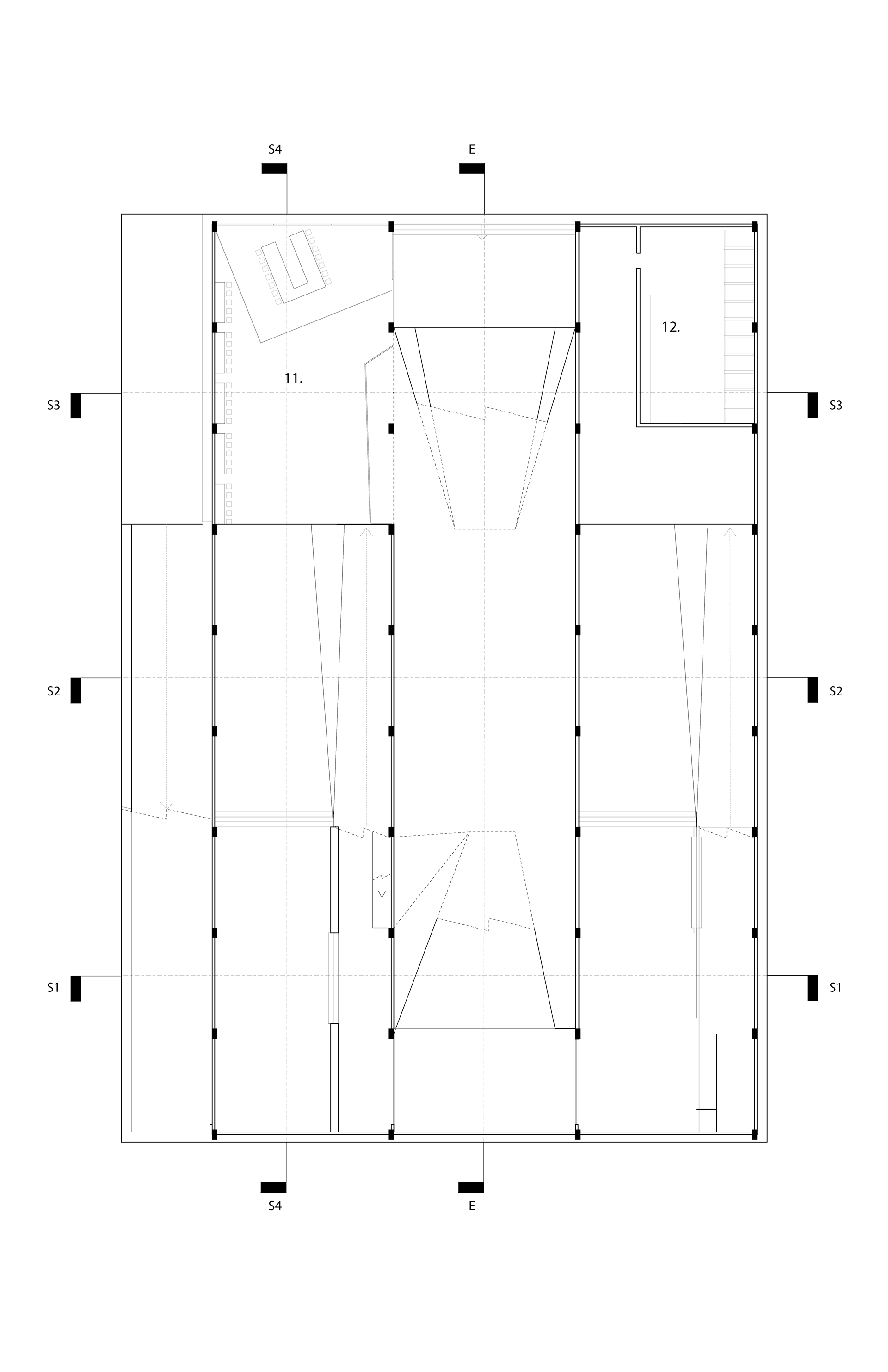
Owen Moss’ Stealth. Beginning with three parallel bars, The typology is then broken down
into an A and B variable. The A, having variation from its base geometry and the B being an
addition unrelated to the A. Multiple of thirds are also used throughout the process of the
design beginning with the aforementioned three building volumes, vertical shifts in section,
and divisions leading in both plan and section by utilizing thirds. Where the divisions of
thirds split the longitudinal plan and intersect with the vertical cut, an ellipse emerges
that cuts through the masses vertically, generating program and divisions of space. The
ideology of Stealth continuously evolving in section is also applied to the longitudinal
section of both the x and the y axis of this cultural center.
undertaken of the red building of the Golden Road Brewery on San Fernando Road and Eric
Owen Moss’ Stealth. Beginning with three parallel bars, The typology is then broken down
into an A and B variable. The A, having variation from its base geometry and the B being an
addition unrelated to the A. Multiple of thirds are also used throughout the process of the
design beginning with the aforementioned three building volumes, vertical shifts in section,
and divisions leading in both plan and section by utilizing thirds. Where the divisions of
thirds split the longitudinal plan and intersect with the vertical cut, an ellipse emerges
that cuts through the masses vertically, generating program and divisions of space. The
ideology of Stealth continuously evolving in section is also applied to the longitudinal
section of both the x and the y axis of this cultural center.
PRECURSOR CASE STUDIES_GOLDEN ROAD BREWERY
PRECURSOR CASE STUDIES_STEALTH // MOCA GEFFEN
SUBDIVISION_PLANS
Below Grade 1B
Ground Level 1F
Second Level 2F
Third Level 3F
Site Plan
Section Elevation E
Sections